Оглавление
- Форм-фактор
- Технические характеристики
- Основная функциональность: чипсет, процессор, память
- Периферийная функциональность: PCIe, SATA, разные «фенечки»
- Периферийная функциональность: USB-порты, сетевые интерфейсы, ввод-вывод
- Аудиоподсистема
- Питание, охлаждение
- Подсветка
- Программное обеспечение под Windows
- Настройки BIOS
- Работоспособность (и разгон)
- Выводы
Перед сами обзором снова надо отметить, что здесь информация только по возможностям той или иной материнской платы, ибо если кого интересуют процессоры Intel под LGA1700 12/13/14 поколений, их сравнения с предыдущими и конкурентами от AMD, то ищите материалы на нашем сайте в разделе процессоров.
Сегодня у нас побывала представительница бюджетного семейства от Afox на системном чипсете Intel H610 стоимостью около 8,5 тысяч рублей. Да, чипсет H610 самый дешевый из всего семейства 6хх (для процессоров 12/13/14го поколений). 13-го поколение вышло давно, при этом среди чипсетов 7хх поколения H710 не оказалось, как и не появилось такового с выходом 14-го поколения процессоров. А потому самые дешевые материнские платы под LGA1700 — это основанные на H610.
Таблица основных отличий чипсетов B660, H610 и Z690.
| Особенности | B660 | H610 | Z690 |
|---|---|---|---|
| Совместимость с процессорами Intel | 12th/13rd Gen Core | 12th/13rd Gen Core | 12th/13rd Gen Core |
| Версия PCIe (процессор) | 4.0 & 5.0 | 3.0 & 4.0 | 4.0 & 5.0 |
| Количество линий PCIe (процессор) | 20 | 20 | 20 |
| Версия PCIe (чипсет) | 3.0 & 4.0 | 3.0 | 3.0 & 4.0 |
| Количество линий PCIe (чипсет) | 14 (6 x 4.0 & 8 x 3.0) | 8 (8 x 3.0) | 28 (12 x 4.0 & 16 x 3.0) |
| Версия DMI | 4.0 | 4.0 | 4.0 |
| Количество линий DMI | x4 | x4 | x8 |
| Поколение ОЗУ | DDR4 & DDR5 | DDR4 & DDR5 | DDR4 & DDR5 |
| Количество каналов ОЗУ | 2 | 1 | 2 |
| Максимальное количество слотов ОЗУ | 4 | 2 | 4 |
| Максимальный объем ОЗУ | 128 ГБ | 64 ГБ | 128 ГБ |
| Количество портов SATA 6.0 Gb/s до | 4 | 4 | 8 |
| Порты USB 3.2 Gen 2x2 (20Gbps) до | 2 | Нет | 4 |
| Порты USB 3.2 Gen 2x1 (10Gbps) до | 4 | 2 | 10 |
| Порты USB 3.2 Gen 1x1 (5Gbps) до | 6 | 2 | 10 |
| Порты USB 2.0 до | 12 | 10 | 14 |
| Встроенная поддержка Wi-Fi | Wi-Fi 6E | Нет | Wi-Fi 6E |
| Возможность разгона по частоте шины | Нет | Нет | Да |
Основные моменты и отличия H610:
- связь между чипсетом и процессором по DMI урезана в 2 раза;
- общее количество линий PCIe — 8 и все они PCIe 3.0;
- наличие 4х портов SATA идет в дополнении к 8 линиям PCIe, когда как в 28 линий у Z690 4 порта SATA уже входят;
- поддержки встроенных USB 3.2 Gen2x2 (до 20 Gb/s) портов нет
- поддерживается до 2х USB 3.2 Gen2 (10 Gb/s) и 2х USB 3.2 Gen1 (5 Gb/s). В целом высокоскоростных портов (High Speed In Out, HSIO) получилось 12.
- поддержка до 10 USB 2.0.
12/13/14е поколения процессоров добавляют к этому набору еще 20 линий PCIe, при этом 16 линий (расходуемые на слот PCIe x16) версии PCIe 4.0, оставшиеся 4 линии PCIe 4.0 идут на М.2 слот. Процессоры этих поколений умеют поддерживать как DDR5, так и DDR4, так что производители матплат вольны выпускать продукты как с DDR5, так и с DDR4 слотами.
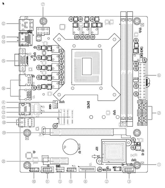
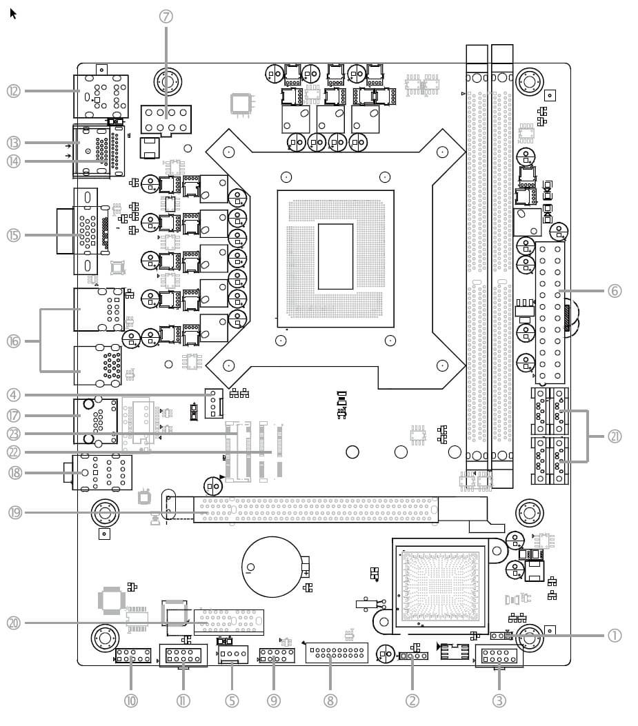
Итак, у нас сегодня Afox IH610D4-MA-V2. У компании Afox суффикс D4 в названиях означает поддержку памяти DDR4.
Afox IH610D4-MA-V2 поставляется в стандартной коробке фирменного дизайна серии. Комплект размещен под платой в отдельном отсеке.
Комплект поставки минимален: кроме кабеля SATA, имеются накопитель с ПО и задняя панель. Руководства пользователя в печатном виде нет.
ПО поставляется на накопителе типа CD, впрочем за время путешествия платы к покупателю оно все равно успевает устареть, так что придется его обновлять с сайта производителя сразу после покупки.
Форм-фактор
Форм-фактор Mini-ITX имеет размеры 170×170 мм, microATX до 244×244 мм, ATX до 305×244 мм, а E-ATX — до 305×330 мм. Материнская плата Afox IH610D4-MA-V2 выполнена в форм-факторе microATX, имеет размеры 234×204 мм, и на ней имеются 6 монтажных отверстий для установки в корпус.
Оборотная сторона — практически пустая. Текстолит обработан хорошо: во всех точках пайки острые концы срезаны. «Заглушка» на заднюю панель с разъемами не установлена и прилагается отдельно в комплекте поставки.
Защитной пластины (бэкплейта) нет.
Технические характеристики
Традиционная таблица с перечнем функциональных особенностей.
| Поддерживаемые процессоры | Intel Core 12-/13- и 14-го поколений |
|---|---|
| Процессорный разъем | LGA 1700 |
| Чипсет | Intel H610 |
| Память | 2 × DDR4, до 3200 МГц (XMP), до 64 ГБ, два канала |
| Аудиоподсистема | 1 × Realtek ALC897 (5.1) |
| Сетевые контроллеры | 1 × Realtek RTL8111H Ethernet 1 Гбит/с |
| Слоты расширения | 1 × PCIe 4.0 x16 (режим x16) 1 × PCIe 3.0 x1 |
| Разъемы для накопителей | 4 × SATA 6 Гбит/с (H610) 1 × M.2 (CPU, PCIe 4.0 x4/SATA для устройств формата 2260/2280) |
| USB-порты | 2 × USB 2.0: 1 внутренний разъем на 2 порта (H610) 2 × USB 2.0: 4 порта Type-A (черные) на задней панели (H610) 2 × USB 3.2 Gen1: 1 внутренний разъем на 2 порта (H610) 2 × USB 3.2 Gen2: 2 порта Type-A (синие) на задней панели (H610) |
| Разъемы на задней панели | 2 × USB 3.2 Gen2 (Type-A) 2 × USB 2.0 (Type-A) 1 × RJ-45 3 аудиоразъема типа миниджек 1 разъем HDMI out 1 разъем d-Sub (VGA) out 1 разъем DP out 2 разъема PS/2 |
| Прочие внутренние элементы | 24-контактный разъем питания ATX 1 8-контактный разъем питания EPS12V 1 разъем для подключения 2 портов USB 3.2 Gen1 1 разъем для подключения 2 портов USB 2.0 2 разъема для подключения 4-контактных вентиляторов и помп ЖСО 1 разъем для подключения управления аудио с передней панели корпуса 1 разъем для подключения адаптера управления с передней панели корпуса 1 разъем COM-port 1 разъем сброса CMOS |
| Форм-фактор | microATX (234×204 мм) |
| Розничные предложения |
Основная функциональность: чипсет, процессор, память
Схема работы связки чипсет+процессор.
Формально имеется поддержка памяти DDR4 до 3200 МГц, данная плата эти частоты и поддерживает.
Процессоры Intel Core 12-го поколения (совместимые с сокетом LGA1700 и поддерживаемые H610/B660/Z690) имеют 20 линий ввода-вывода (16 PCIe 5.0, 4 PCIe 4.0), не имеют USB и SATA портов. При этом взаимодействие с H610 идет по особому каналу Digital Media Interface 4.0 (DMI 4.0 x4 (именно х4!)). Все PCIe линии процессора идут на слоты расширения PCIe и порт М.2. Serial Peripheral Interface (SPI) используется для взаимодействия с системой UEFI/BIOS, а шина Low Pin Count (LPC) — для связи с устройствами ввода/вывода, не требующими высокой пропускной способности (контроллерами вентиляторов, TPM, старой периферии).
В свою очередь чипсет H610 понижает версию PCIe 5.0 от процессора до 4.0 и поддерживает в сумме 16 линий ввода/вывода, которые распределяться могут так:
- до 10 портов USB (из которых до 2 портов USB 3.2 Gen2, до 2 портов USB 3.2 Gen1, до 10 портов USB 2.0, линии USB 2.0 используются в том числе и для поддержки 3.2 портов);
- до 4 портов SATA 6Гбит/с;
- до 8 линий PCIe ( версии 3.0).
Afox IH610D4-MA-V2 поддерживает процессоры Intel Core 12/13/14-го поколений, выполненные под разъем (сокет) LGA1700.
Для установки модулей памяти на плате Afox имеется 2 DIMM-слота. Плата поддерживает небуферизованную память DDR4 (non-EСС), а максимальный объем памяти составляет 64 ГБ.
Слоты DIMM не имеют металлической окантовки.
Периферийная функциональность: PCIe, SATA, разные «фенечки»
Выше мы изучили потенциальные возможности тандема H610+Core, а теперь посмотрим, что из этого и как реализовано в данной материнской плате.
Кроме USB-портов, к которым мы подойдем позже, чипсет H610 обладает 8 PCIe линиями и 4 портами SATA. Считаем, сколько линий уходит на поддержку (связь) с тем или иным элементом (надо учитывать, что все линии версии PCIe 3.0):
- Слот PCIe x1 (1 линия);
- Слот M.2 (WiFi) (1 линия);
- 4 порта SATA (4 линии);
- Realtek RTL8111H (Ethernet 1 Gb/s) (1 линия);
3 линии PCIe оказались занятыми плюс порты SATA1/2/3/4, суммарно потрачено 7 HSIO. В данном случае связь с аудиокодеком организована через канал HDA.
Теперь посмотрим выше на то, как работают процессоры в данной конфигурации. У CPU 12/13/14-го поколений всего 20 линий PCIe, 4 из них версии PCIe 4.0 отведены на порт М.2_1. Оставшиеся 16 линий PCIe 5.0 (с понижением до версии 4.0) идут на единственный слот PCIe x16, поэтому вариантов переключений нет, как и мультиплексоров для этих целей.
Теперь в целом про слоты PCIe. Всего на плате есть 2 слота: один PCIe x16 (для видеокарт или других устройств) и PCIe x1. Если про первый PCIe x16_1 я выше уже рассказал (он подключен к CPU), то PCIe x1 подключен к H610.
Первый «процессорный» слот PCIe x16 металлического армирования не имеет.
Матплата позволяет смонтировать СО любого размера.
На очереди — накопители.

Всего у платы 4 разъема Serial ATA 6 Гбит/с + 1 слот для накопителей в форм-факторе M.2. Порты SATA реализованы через чипсет H610 и НЕ поддерживают создание RAID.
Материнская плата имеет 1 слот форм-фактора М.2, который получает данные от CPU, работает с модулями с любым интерфейсом (в случае малобюджетных процессоров – только SATA), а также поддерживают размеры модулей 2260/2280.
Охлаждения у слота М.2 нет.
Периферийная функциональность: USB-порты, сетевые интерфейсы, ввод-вывод
Теперь на очереди USB-порты и прочие вводы-выводы. И начнем с задней панели, куда выведены большинство из них.
Повторим: чипсет H610 способен реализовать не более 10 портов USB, из которых может быть до 2 портов USB 3.2 Gen1, до 2 портов USB 3.2 Gen2, и/или до 10 портов USB 2.0.
Также мы помним и про 3 линии PCIe (+ 4 SATA), которые идут на поддержку накопителей, сетевых и иных контроллеров (я выше уже показал на что и как расходуются 7 линий из 12).
И что мы имеем? Всего на материнской плате — 8 портов USB:
- 2 порта USB 3.2 Gen2: все реализованы через H610 и представлены на задней панели 2 портами Type-A (синего цвета);
- 2 порта USB 3.2 Gen1: реализованы через H610 и представлены внутренним разъемом на материнской плате на 2 порта;
- 4 порта USB 2.0/1.1: все реализованы через H610, 2 из них представлены на задней панели 2 портами Type-A (черного цвета); еще 2 представлены внутренним разъемом на материнской плате на 2 порта.
Итак, через чипсет H610 реализовано выделенных 2 USB 3.2 Gen2 и 2 USB 3.2 Gen1.
= 4 высокоскоростных портов. Не забываем, что каждый высокоскоростной порт USB обеспечен портом USB 2.0, то есть уже 4 порта USB 2.0 также занято. Плюс 4 выделенных порта USB 2.0 и 1 порт выделен для поддержки беспроводных соединений BT/WiFi (при наличии слота M.2 (Key E). Всего 9 USB портов реализовано.
Ну и 7 HSIO (линий PCIe и портов SATA), выделенных на поддержку иной периферии.
Итого у H610 в данном случае реализовано 11 высокоскоростных портов из 16.
Теперь о сетевых делах.
Материнская плата оснащена средствами связи очень скромно. Имеется Ethernet-контроллер Realtek RTL8111H, способный работать по стандарту 1 Гбит/с.
Он оснащен усилителем (ре-драйвером) и защитником от помех от E-Con.
Беспроводной связи нет, но при этом имеется слот M.2 (E-key) для такого рода модулей.
Заглушка, традиционно надеваемая на заднюю панель, в данном случае прилагается в комплекте.
Аудиоподсистема
Мы знаем, что почти во всех современных материнских платах звуковым кодеком является продукт от Realtek, обеспечивающий вывод звука по схемам до 7.1, в последнее время это стал ALC4080 с характеристиками 32 бит / 384 кГц. Однако в данном случае применен очень старый Realtek ALC897 и схема понижена до 5.1.
Аудиоподсистема весьма проста: нет ни операционных усилителей, ни ЦАП, даже «аудиофильских» конденсаторов нет.
Аудиотракт вынесен на угловую часть платы, не пересекается с другими элементами. Все аудиоразъемы на задней панели имеют привычную цветовую окраску. S/PDIF нет.
Питание, охлаждение
Для питания платы на ней предусмотрены 2 разъема: в дополнение к 24-контактному ATX здесь есть еще 8-контактный EPS12V.
Схема питания процессора выполнена по схеме 6+1+1 (всего 8 фаз, 6 на VCore, 1 на iGPU и 1 на VCCIO).
Каждый канал фазы имеет суперферритовый дроссель и набор полевых транзисторов Vishay SIRA14DP/SIRA12DP (20 А).
Управляет схемой питания ШИМ-контроллер RT3628 от Richtek.
Питание VCCSA имеет намного более простую схему, как и питание модулей оперативной памяти также имеет однофазную схему.
Теперь про охлаждение.
Охлаждение имеет только системный чипсет.


Слот M.2 охлаждения не имеет.
Подсветка
Программное обеспечение под Windows
Настройки BIOS
Работоспособность (и разгон)
Запускаем все в режиме по умолчанию. Затем нагружаем стресс-тестами.
Ну каких чудес можно ждать от чипсета такого уровня и от очень скромной системы питания? — Разумеется, авторазгон минимален. Но и так хорошо. Все параметры системы при стресс-тесты были в норме.
Выводы
Материнская плата Afox IH610D4-MA-V2 предназначена для создания бюджетных ПК и поддерживает работу с памятью DDR4. Эта модель форм-фактора microATX способна стабильно работать с процессорами среднего уровня, обеспечивая достаточное питание для минимального авторазгона в режиме Intel Turbo Boost. Ее стоимость на момент публикации обзора начиналась от 8 тысяч рублей.
У платы 8 USB-портов, включая 2 USB 3.2 Gen2 и 2 USB 3.2 Gen1. Имеется «длинный» слот PCIe х16, получающий от процессора 16 линий PCIe 4.0. Также есть один слот PCIe x1. Для накопителей предлагается 1 слот M.2 (подключен к процессору линиями PCIe 4.0) и 4 порта SATA. Сетевые возможности скромны: один проводной контроллер 1 Гбит/с плюс слот для установки модуля беспроводной связи (приобретается отдельно). Подсветка у платы отсутствует, нет и разъемов для подключения внешних устройств подсветки.
Благодарим компанию Afox Corp
и лично Alex Kung
за предоставленную на тестирование плату












































